Kiseleff Arcul de triumf Vanzare vila 12 camere EFR UPGRADE
Descriere casa vila
EFR UPGRADE - Suitable for embassy residence, medical clinic, downtown 12 room villa ! NUMAI PENTRU CUNOSCATORI ! EFR UPGRADE IMOBILIARE va prezinta spre vanzare o vila cu arhitectura deosebita cu un ansamblu de spatii compus din : 12 camere, 5 bai, 4 balcoane/terase, 2 bucatarii, wc serviciu, boxa, debara, dressing, garaj la demisol in suprafata utila de 430 mp, suprafata construita 610 mp, situata in perimetrul zona Str. C. Sandu Aldea, str. Av. Sanatescu, Bd Marasti. Imobilul este construit in anul 1933, are 2 etaje plus demisol si parter si este nemobilat. Suprafata teren 718mp, amprenta 152mp, curte libera 566mp. Demisolul contine urmatoarele spatii: garaj, 4 camari, camera centralei si o crama de aprox 100mp cu 4,5m inaltime. Parterul cat si etajul sunt formate din cate un apartament aproximativ idenitice cu living, birou, 2 dormitoare, baie, 2 gr sanitare, bucatarie, camara si spalatorie. Mansarda contine 3 camere si un grup sanitar si o terasa mare, superba !. Imobilul nu a fost afectat de nici un cutremur, nu prezinta nicio crapatura la nivelul structurii de rezistenta, sau a peretilor, insa necesita reabilitare la nivelul finisajelor si instalatiilor.
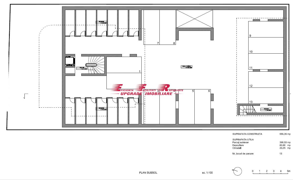
ATENTIE : Exista posibilitatea dezvoltarii imobiliare a unui proiect futurist, cu 13 apartamente de 2 si 3 camere, într-o locație excelenta, ce va beneficia de multe facultăți moderne, de lux si o curte proprie cu mult spațiu verde amenajata între cele doua corpuri de clădire noi care se vor construi conform normelor zonale aprobate prin regulamentul urbanistic. Exista o parte din proiect deja realizata si se pot vedea numărul si mărimea apartamentelor. Regim de înălțime S+D+P+3. Parcare subterana pentru 13 autoturisme. Lift auto si pietonal. Corp 1 : 8 apartamente, total 594mp utili ; Corp 2 : 5 apartamente, total 383mp utili . Total general 977 mp utili si 1843 mp suprafata construita, din care subsolul comun masoara 555mp. Regim maxim de înălțime propus/realizat prin proiect : H=13m, POT 39%, CUT 1.8
Se preteaza pentru uz rezidential. Aproape de supermarket, parc, farmacie, scoala. Pentru mai multe detalii si vizionari nu ezitati sa contactati consultantul imobiliar !.
ID Oferta: 246
| Pret Vanzare: | € 1,900,000 |
|---|---|
| Numar Camere: | 12 |
| Zona: | Arcul de Triumf |
| Suprafata utila: | 430 mp |
| Reper: | Arcul de Triumf |
| Strazi: | Asfaltate |
| Numar Dormitoare: | 4+ |
| Tip casa: | |
| Numar Bai: | 5 |
| Numar Bucatarii: | 3 |
| An Constructie: | 1933 |
| Suprafata Teren: | 718 mp |
| Front: | 18 ml / nr fronturi |
| Disponibilitate: | - |
| Actualizat la: | 7 Decembrie 2025 |
| Numar de afisari: | 2575 |
Caracteristici generale
- Stadiu: Finalizat
- Ferestre: Lemn
- Structura: Beton
- Pereti: Var/Huma
- Podele: Parchet
- Acoperis: Tabla
- Locuri Parcare: 5/garaj exterior
- Curte: Foisor, Gradina
- Incalzire: Centrala Termica
- Mobilat: Clasic
- Bucatarie: Inchisa, Mobilata
- Utilitati: Apa, Canalizare, Gaz




















